Loading...
Pizzeria storica al Trancio 30.000€ Milano

Pizzeria storica al Trancio 30.000€ Milano Russo Commerciale

Scheda tecnica (Rif. 869)
Tipologia Pizzeria
Indirizzo Via G.Bodoni 9 Milano
Prezzo € 30000
Anticipo € 110.000
Mq 55
Incasso ottimi
Telefono 0226143265
Cellulare
Titolare
Affitto 1.100 c s
Proprietà
Stipulato 2025
Descrizione

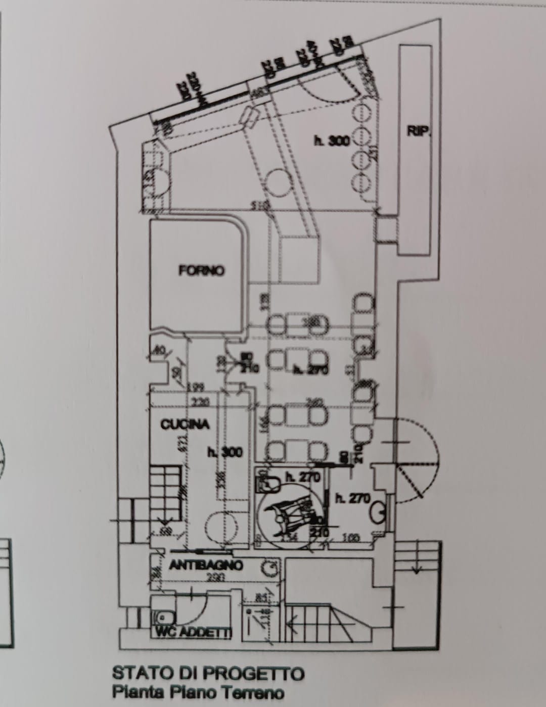
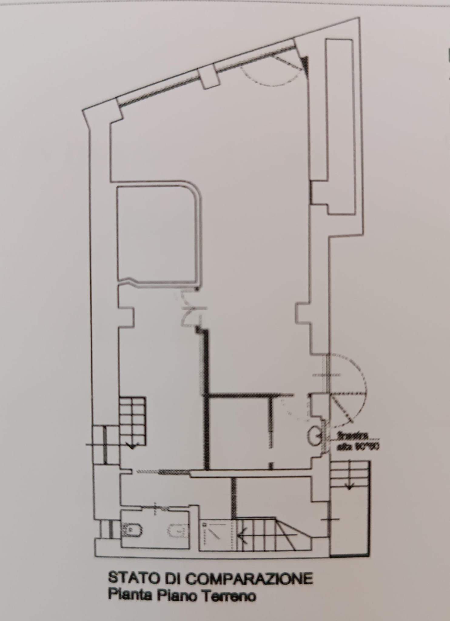
Milano, in via Bodoni, cediamo storica Pizzeria al trancio con forno a legna e con somministrazione. In attività dal 1968, attualmente chiusa da pochi mesi per motivi familiari. Sono richieste persone volenterose, Si può cambiare in altra attività destinandola a food. Locale adatto anche, esempio, a pasticceria o hamburgeria,Paninoteca, Pokeria, Cucina Healthy Contratto d'affitto ex novo 1100€ mensili.